Vanne PVC TEKNICA avec embouts PE longs
Code produit : 1148/1188
Vannes à boisseau sphérique
Domaines d'application
Vannes en PVC non plastifié avec embouts PE pour les systèmes de canalisations d'eau sous pression à des températures inférieures ou égales à 45°C (à partir de 25°C, appliquer un coefficient de détimbrage) et leurs assemblages avec des composants en PVC-U ou en d'autres matériaux destinés aux conduites enterrées ou en aérien à l'extérieur ou à l'intérieur du bâtiment.
Caractéristiques techniques
Matière
NF EN ISO 1452-4 : Systèmes de canalisations en plastique pour l'alimentation en eau, pour branchements et collecteurs d'assainissement enterrés et aériens avec pression - Polychlorure de vinyle non plastifié (PVC-U) - Partie 4 : robinets-vannes Certification
Corps : PVC-U. Poignée : PVC-U. Ecrous : PVC-U. Joints : EPDM. Sphère : PVC-U. Siège : PTFE. Embouts longs: PE.
Références normatives NF EN 12201-4 : Systèmes de canalisations en plastique pour l'alimentation en eau et pour les branchements et les collecteurs d'assainissement avec pression - Polyéthylène (PE) - Partie 4 : robinetsNF EN ISO 1452-4 : Systèmes de canalisations en plastique pour l'alimentation en eau, pour branchements et collecteurs d'assainissement enterrés et aériens avec pression - Polychlorure de vinyle non plastifié (PVC-U) - Partie 4 : robinets-vannes Certification
Sans Attestation de Conformité Sanitaire (ACS)
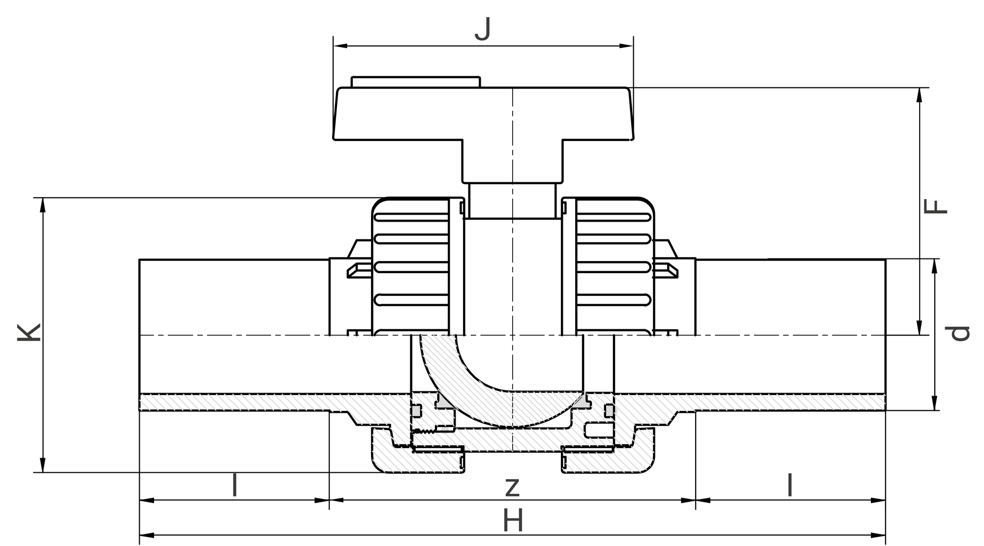
Références et dimensions
| Référence | d | DN | l | z | J | H | F | K | PN à 20°C | Fiche tech. | CAD |
|---|---|---|---|---|---|---|---|---|---|---|---|
| 114820 | 20 | 15 | 41 | 63 | 65 | 145 | 45 | 45 | 16 | Télécharger Fiche tech. | Télécharger CAD |
| 114825 | 25 | 20 | 50 | 93 | 73 | 193 | 54 | 55 | 16 | Télécharger Fiche tech. | Télécharger CAD |
| 114832 | 32 | 25 | 44 | 102 | 78 | 190 | 66 | 66 | 16 | Télécharger Fiche tech. | Télécharger CAD |
| 114840 | 40 | 32 | 48 | 107 | 96 | 203 | 74 | 80 | 16 | Télécharger Fiche tech. | Télécharger CAD |
| 114850 | 50 | 40 | 54 | 130 | 110 | 238 | 86 | 96 | 16 | Télécharger Fiche tech. | Télécharger CAD |
| 114863 | 63 | 50 | 64 | 142 | 129 | 270 | 106 | 118 | 16 | Télécharger Fiche tech. | Télécharger CAD |
Schéma technique pour le produit :

Outillage de mise en oeuvre
Informations logistiques
| Pièce | Carton | ||||||||
|---|---|---|---|---|---|---|---|---|---|
| Référence | Larg. (mm) | Prof. (mm) | Haut. (mm) | Poids (kg) | Larg. (mm) | Prof. (mm) | Haut. (mm) | Qté | Poids (kg) |
| 114820 | 145 | 45 | 68 | 0,1 | 480 | 330 | 355 | 80 | 8.54 |
| 114825 | 193 | 55 | 82 | 0,2 | 480 | 330 | 355 | 60 | 12.54 |
| 114832 | 190 | 66 | 99 | 0,28 | 480 | 330 | 355 | 40 | 11.74 |
| 114840 | 203 | 80 | 114 | 0,47 | 480 | 330 | 355 | 30 | 14.64 |
| 114850 | 238 | 96 | 134 | 0,67 | 480 | 330 | 355 | 20 | 13.94 |
| 114863 | 270 | 118 | 165 | 1,4 | 480 | 330 | 355 | 10 | 14.54 |
