Coude à 90° universel PLASS4
Code produit : 77050
Raccords universels PLASS4
Raccord de transition universel - coudé à 90° pour systèmes de canalisations sous pression.
Permet de relier à 90° un tube en PEHD à un tube en Plomb, Cuivre, Aluminium, Acier, Inox, PP et PVC selon les tolérances des diamètres extérieurs.
Disponible en PN16 d25x15-22 à d25x27-35.
Les produits
Véritable couteau suisse de la gamme Série 7, il permet la transition de matières de tube de manière simple en évitant les pièces particulières.
Domaines d'application
Irrigation - Adduction d'eau brute ou destinée à la consommation humaine.
Température du fluide : max 40°C, détimbrage à partir de 20°C.
Caractéristiques techniques
Matière
NF EN 681-1: Garnitures d'étanchéité en caoutchouc - Spécification des matériaux pour garnitures d'étanchéité pour joints de canalisations utilisées dans le domaine de l'eau et de l'évacuation. - Partie 1 : caoutchouc vulcanisé Certification
Corps : Polypropylène, copolymère haute qualité. Ecrous : Polypropylène, copolymère haute qualité. Joints : NBR. Bagues de crampage : Polyacétal.
Références normatives ISO 17885: 2021 - Systèmes de canalisations en plastiques — Raccords mécaniques pour les canalisations sous pression — SpécificationsNF EN 681-1: Garnitures d'étanchéité en caoutchouc - Spécification des matériaux pour garnitures d'étanchéité pour joints de canalisations utilisées dans le domaine de l'eau et de l'évacuation. - Partie 1 : caoutchouc vulcanisé Certification
Attestation de Conformité Sanitaire (ACS)
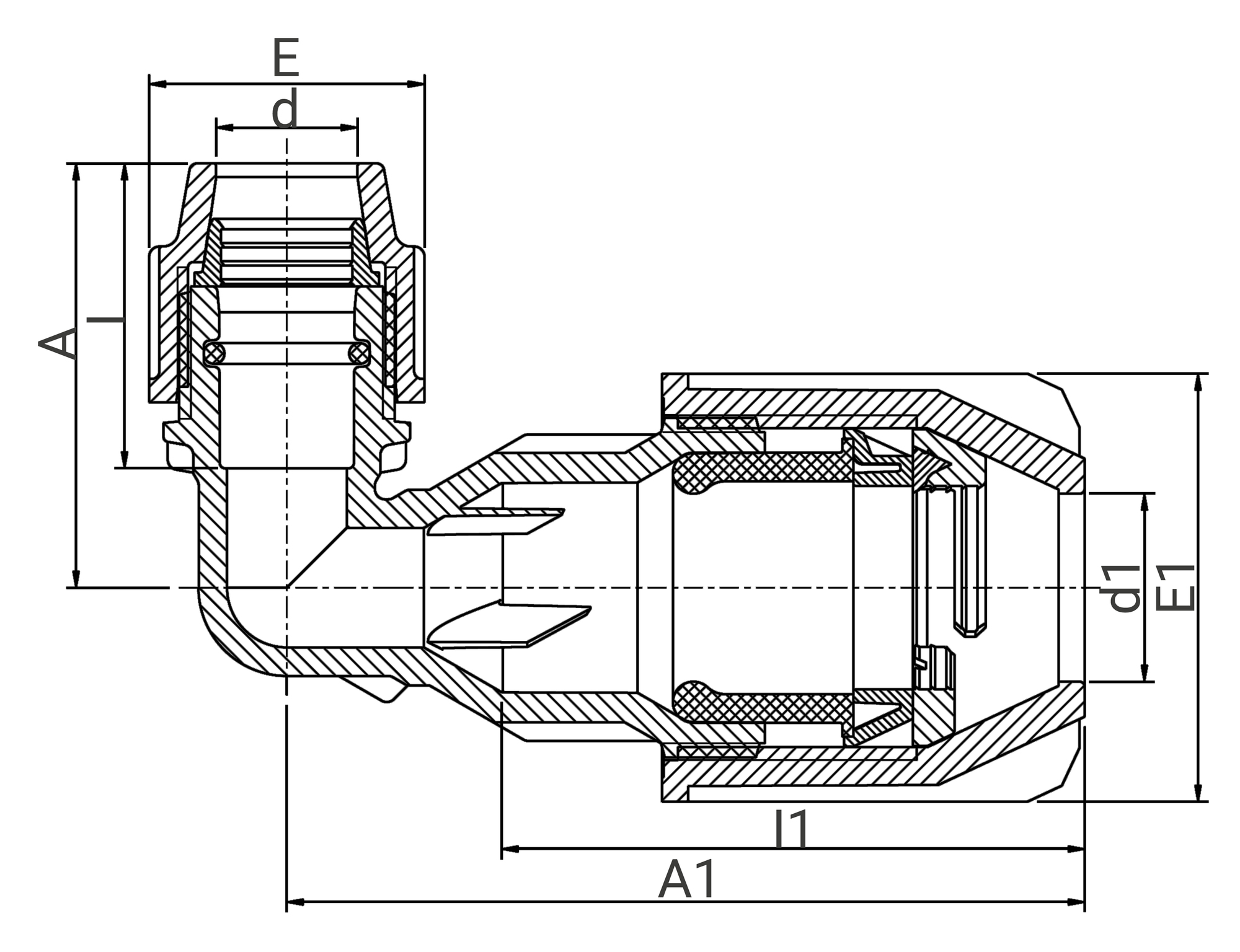
Références et dimensions
| Référence | d x d1 | E1 | A | A1 | I | I1 | E | PN à 20°C | Fiche tech. | CAD |
|---|---|---|---|---|---|---|---|---|---|---|
| 77050251522 | 25 x 15-22 | 64 | 81 | 128 | 58 | 105 | 54 | 16 | Télécharger Fiche tech. | Télécharger CAD |
| 77050252027 | 25 x 20-27 | 71 | 81 | 139 | 58 | 105 | 54 | 16 | Télécharger Fiche tech. | Télécharger CAD |
| 77050252735 | 25 x 27-35 | 83 | 81 | 153 | 58 | 112 | 54 | 16 | Télécharger Fiche tech. | Télécharger CAD |
Schéma technique pour le produit :

Outillage de mise en oeuvre
Informations logistiques
| Pièce | Carton | ||||||||
|---|---|---|---|---|---|---|---|---|---|
| Référence | Larg. (mm) | Prof. (mm) | Haut. (mm) | Poids (kg) | Larg. (mm) | Prof. (mm) | Haut. (mm) | Qté | Poids (kg) |
| 77050251522 | 115 | 155 | 65 | 0,2 | 570 | 490 | 330 | 80 | 17,4 |
| 77050252027 | 120 | 165 | 75 | 0,24 | 570 | 490 | 330 | 70 | 18,2 |
| 77050252735 | 125 | 180 | 85 | 0,31 | 570 | 490 | 330 | 55 | 18,45 |
